霧よけ
霧よけ
普通グラスウールは経年変化として、自重で垂れ上部に隙間が出来ますのでお薦めしません。
外断熱の場合断熱材の厚みは一般的には 50mm ですので、高性能グラスウール100mmより断熱性能は落ちますがメーカーは熱伝導率を強調しグラスウールの方が性能が悪いような印象を持たせます。
材料の厚みを計算に入れればグラスウールの方が有利なのです。

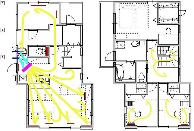
換気扇(大)
メリット デメリット
24時間換気(冷気の進入なし) 野菜などを保管する冷暗所がない
全室暖房(洗面所、便所なども全て) 冬の植物には暖かすぎ、すぐ駄目になる
床下から小屋裏まで湿気なし 過乾燥
真冬でも結露なし 冬でも虫が元気
夏の外出帰宅後でも熱気なし
真夏でも小屋裏は2階室温と同温度
温水暖房器具で地震時の火災でも安心
床裏側に断熱材を使用していませんので漏水後の修理も簡単
換気扇はパイプファンなのでお手入れ簡単
イニシャルコストが安い
灯油ならランニングコストが安い
床下暖房給排気システム
換気扇(小)
給気口
構造画像
自宅を実験住宅にし、私の考える「快適な住宅」を公開しています。
いつでも見にいらしてください。
山田設計 コンセプト システム 工 程 費 用 プロフィール リンク
夏と冬   構造と仕様  換気
平面図
断熱材性能比較
構造と仕様
ネオマフォーム 50mm 2.1 u・K/W
カネライトFV  85mm 2.9 u・K/W
カネライトFV  50mm 1.8 u・K/W
アキレス     50mm 2.1 u・K/W
露断(GW48k)25mm 0.7 u・K/W
普通グラスウール 100mm 1.7 u・K/W
高性能グラスウール 100mm 2.6 u・K/W
屋根 棟換気
表面砕石ガラス繊維マット     アスファルトシングル葺
アスファルトルーフィング940
通気層 45o(通気くん)
高性能GW 190mm
気密シート
小屋裏 換気扇(大) + 換気扇(小)
外壁 防火サイディング
通気層 15mm
透湿防風シート
高性能GW 100mm
気密シート
基礎 内断熱ベタ基礎(基礎断熱)
土間断熱蓄熱コンクリート
給気口 150φ × 2
外部建具 断熱サッシ、断熱玄関ドア
W1800以上は雨戸付
東西面ガラス:Low-eガラス
サッシ上部に庇
床下暖房 ファンコンベクター
各室床に吹き出し口
主婦室
寝室
子供室
子供室
食堂、居間
玄関
暖気風洞
暖気風洞
ファンコンベクタ
自宅システム
黄色が暖気の経路です。 排気は小屋裏から行います。
ファンコンベクタ裏側から絶えず新鮮な空気を取り入れます。

屋根にも通気層
が必要です

※ 断熱抵抗 = 断熱材厚み(m)/熱伝導率(W/m・K)数値が大きいほど性能が良い。
自宅01
有ると無いとでは大違い
付けない設計屋が結構います。
自宅の東面です。
霧除けの重要さが解って頂けるでしょうか。
雨の日だけではないのです、夏の日差しを除けるのにも重要な役目をします。
自宅11
南側から北側まで風は一直線で吹き抜けます。
廊下正面の窓
自宅12
自宅13
玄関内部ハイサイドの窓
廊下の床はタイル張りです
自宅10
居間のハイサイドの窓と天井の梁。
梁を出せば一般住宅でも天井高さが2.65メートルは確保できます
コーナー部分が煙突壁です。
自宅05
自宅06
自宅07
自宅08
自宅09
戻る
次へ
メール
ブックマーク
自宅02
自宅03
自宅04