高齢ホームレス自立支援施設計画案

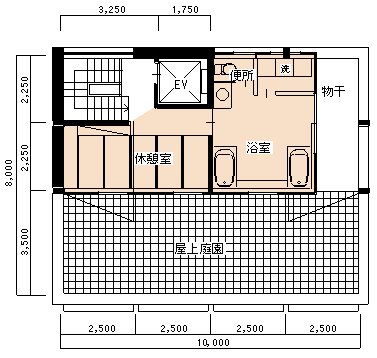
屋上階平面図
●物干しスペースに隣接した洗濯コーナー
●ケアを前提にした複数の個別浴槽がおかれた広くて明るい浴室
●風呂上がりや昼下がりにボランティアと居住者がふれあう休憩室
●自然とふれあう生活が自立を促す屋上庭園

<<< 前ページ「居住階B平面図」に戻る | 次ページ「断面図」へ進む>>>

ホームページに戻る