間取りプラン 述べ20発目
真打登場っっ!

同時に登場した複数のプランや、落書き状のプランなど、すべて通して数えると20発目のプランとなった。前回登場したプランをベースに小変更を加えてほぼ完成形となった。

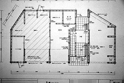
1階部分。


全体像はこんな感じ。


玄関ホールを大きく変更した。玄関からホールに上がると、その向こう側が再び土間になる。コレが両側のガレージからの玄関となる。ここにもゲタ箱を設置。表玄関と、両脇ガレージへの裏玄関がホールの東西に位置する。画像の上側(西側)はガラス張りにして、西からの明るい光を玄関ホールに導く。表玄関から入ると、建物を東西に突き抜けるように西側の窓が目に入る開放的な玄関ホールとした。ホールにはコートなどを収納できる背の高い収納を設置。 シャッタが無い開放空間となる北側ガレージ、こちらのガレージからも玄関ホールへ光を導く為の窓を設置。北側ガレージは通り抜け構造とし、前進で入って前進で出る構造。耐力壁の隙間を自転車置き場や灯油タンク置き場に有効利用。 冬場の吹雪の向きを考慮し、西側にシャッタを設置、北西の風が厳しい冬場のみ西側入り口のシャッタを閉じることが出来るようにした。コレで朝起きたら北側ガレージの中に雪が積もっていたなんて事が無いハズ。 センタのガレージは特に特徴は無いが、階段の下はセンターのガレージから使える大きな収納スペースになっている。


南側ガレージ。斜線部分は強度や耐油性に優れるカラクリート仕上げ。幅は3640mm、奥行きは7280mmだ。西側耐力壁の位置までで言うと奥行きは6370mmとなる。つまり、3640mmX6370mmの壁や柱が無いフラット空間を確保。ロドスタのサイズが1700X4000mmくらいなので、かなり大きな空間と言える。更に、左右の壁の一部を引き戸で仕切った事により、この引き戸を開放すれば、ロドスタのドアを左右同時に全開にする事が可能となる。前後左右に1メートルの空間を確保し、更にドアを全開に出来るように壁と引き戸を配置したわけである。 ちなみに高さは約3000mmくらい。バイクやパーツを収納する独立した倉庫を南端に設置し、この倉庫は3メートルの天井高を活かして上部をロフト構造として、ウイングとかマフラとか、純正シートやバンパーなど、普段用が無いけど捨てられない大物パーツをストックする空間を確保。 EVスペースは将来エレベータを入れるまでは秘密の小部屋として活躍するだろう。

2階部分。


全体的には大きな変更は無い。すべての出入り口を引き戸とし、開放して使うことも閉鎖して使う事も自由に出来るようにした。引き込み戸とした事で開放時にも邪魔にならないようにした。 風にあおられて勝手に閉まるような事も無いし、ドアと違ってどちらから出入りしても邪魔にならず、万が一車椅子生活になっても引き戸は使いやすいハズだ。



南側半分。南側の寝室はホテルの一室のようにしてみたい。約10畳のスペースにベッドとワーキングデスクを設置。クローゼットに、寝室から直接入れる脱衣場や風呂場、寝室から直接使えるバルコニー。バルコニー側にも窓を設置した事で、南側の寝室も三方向に窓を持つ風通しの良い空間となった。 南側の寝室は第二のリビングだ。春や秋の日差しが気持ち良い時期にはココが心地良い空間になるハズ。 ホテルの一室でのんびり過ごすような、気持ち良い日差しの空間でワーキングデスクにレッツノートを開いてサイトの更新など...そんな生活を考えた。風呂場は南側のバルコニーに面した窓を配置。露天風呂風味な開放感を狙った。サンルームは南と西からの日差しが入る最高の日当たりを狙った。脱衣場と風呂場とサンルーム、寝室やクローゼットへの動線も完璧に確保。クローゼットは寝室からも階段ホール側からも使えるようにウォークスルークローゼットとした。洗面台は前回の案から向きを変更。この洗面台はちょっと拘りのデザインと配置にしてみた(別ネタで紹介予定)。EVスペースは秘密の小部屋として使う予定で、ここにも窓を付けた。


北側半分。こちらは普通にLDKだけ。階段を上がってくると画像下側(東側)に出る。そこからリビングに進入(逆に行けば寝室側になる)。リビングに入ると広い空間と北や東の開放感溢れる大きな窓が目に入る。キッチンの裏を見せない配置としながら、キッチンからは裏口風味な引き戸を開けると秘密の小部屋や階段ホールを経て風呂場方面の水周りへの動線を確保。キッチン裏には食品庫などの雑多なスペースとなるパントリを設置。 夏の日差しを避けられる北側リビング、東と西と北の三方向に窓を設けた事で、抜群の風通しを実現するハズだ。 夏場は涼しく快適なリビングとなるだろう。新潟の冬場はどっちみち太陽が出ないので冬場の日当たりの悪さは関係無い(笑)。 しかし、南の太陽がまったく入らないのも寂しいので、勾配天井として屋根の合わせ方を工夫、吹き抜け風味な天井の南側に窓を設置。これにより、4方向からの採光を実現したリビングとなった。画像右下角の四角い部分は、レンガ張りとして以下のモノを設置予定。


薪ストーブ風味な灯油ストーブだ。 暖房を使わないシーズンもリビングの顔として優れたインテリアとなってくれる。メインはエアコン暖房を考えているが、外気温が低くてエアコンが効かなくなる厳冬期はやはり灯油のパワーに頼るしかない。味気無いFFファンヒータではなく、ちょっと拘りの薪ストーブモドキを選んでみた。灯油の価格が下がればメインの暖房となるだろう。灯油の価格が今以上に高騰したらただの飾りになるカモしれない(^^;;;

こんな感じに、約半年間かかって練りに練ったプランが結晶化した。あとは微修正くらいで済むと思われるが、これから部材選びやコンセントの位置とかスイッチの位置とか窓の詳細とか照明とか、大変な打ち合わせが待っている。

つまり、まだ間取りが決定したに過ぎない と言う事か?(^^;;;;;

トップページ

.