間取りプラン 9発目

8発目のメモにこちらの希望を加えて発展させ清書してもらった。今までのマンガっぽい絵は登場せず、ちゃんとした図面のみ(今までもちゃんとした図面も有ったんだけど)。

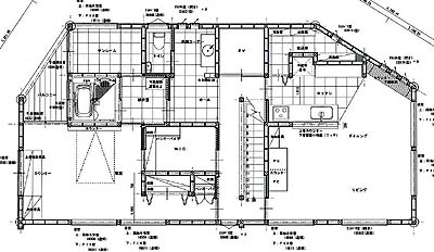
1階部分。上は前回の落書きメモ。


北側耐力壁の位置と数を変更してもらい、耐力壁の間を自転車置き場として利用出来るように設定。小さな仕切りとなる耐力壁の隙間には、縦型の200L灯油タンクも置ける。長すぎた玄関土間部分を少し短くし、階段の上り口までに余裕を持たせた。

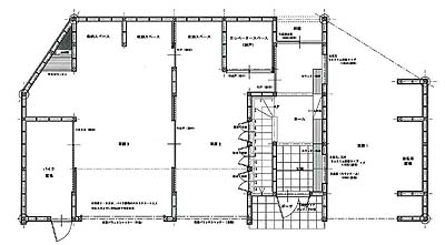
2階部分。


ほぼ落書き通りで大した変更は無い。各部の動線は素晴らしい。

ちなみに壁量や偏芯率を心配する声が多かったのだが、北側ガレージに耐力壁を入れたこと、東側にも壁を増やしたこと、などにより、壁芯、剛芯、重心、ほぼ一点に集中し、偏芯率は非常に小さくなった。また、壁量安全率も各方向共に十分過ぎる数値を出した。

さて、ただの落書きだったプラン8発目を、完全な図面にした事でいろいろ見えてきた部分も有る。コレをベースに修正を加えて完成形まで持って行く事にする。 派生プランや同時に数点出たプランなどを全部数えてみたら、コレが19発目だった。 次回、20発目にして約完成形となるっっ!

トップページ

.