間取りプラン 3発目

約1ヶ月ほど間が開いて3発目が出た。今回は前回の2発目の微修正版だ。よって、大きな違いは無い。

まずは前回の2発目がコレ↓


で、今回の3発目が↑コレ。ほぼ一緒。エレベータスペースを玄関側ではなく、ガレージ側から使えるように配置。万が一、車椅子生活になったとしてもガレージ内から段差無しで出入り出来るようにした。ロドスタガレージと銀プレッサガレージの間に仕切りを入れ、完全に別の空間にした。日常空間である銀プレッサバンと、非日常であるロドスタを切り離したい。

玄関ホール奥に位置する階段、こんなモノが提案されている。


アルミ製の高級品らしい。この階段の向こう側が西側の窓となり、玄関ホール全体に光が入る。階段下に観葉植物など置くのも良いカモしれない。

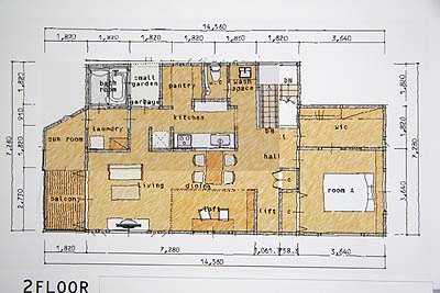
前回の2発目の2階部分がコレ↓ コレも微修正となる。



一番大きな違いは階段や階段ホール部分をリビングと仕切った事。冷暖房効率を考えた事と、寝室とリビングの間に空間を作る事での防音効果も考えた。。 露天風呂風味なフロと坪庭はそのまま生かた。バルコニー、サンルーム、ランドリースペース、フロ、などの動線は素晴らしい。このままでも不具合は無いと思う...? 優等生なプランなのだが、「コレだっ!」 と感じさせるナニかが無い気もする。

実は、2発目から3発目までの1ヶ月間、他社との打ち合わせが進んでいた為、その話の中で出てきたのが北側リビングプラン。ウチの土地の個性を生かすには北側リビングの方が良いのではないかと思い始めていた。

非常に大きな建築面積で、床材や階段や外装など各部に高価な部材を使い、構造も豪華でありながら低価格な見積もりを出してきた今村工務店と+d house、こちらで北側リビングプランをやってもらいたい。と言うわけで、北側リビングプランをこちらから提案。現状までのプランで良かった部分とダメな部分、そして期待する事を詳細に伝え、次回の北側リビングプランへと繋がるのだった。

トップページ

.